NR 74

Brakke NR 74

Kategori
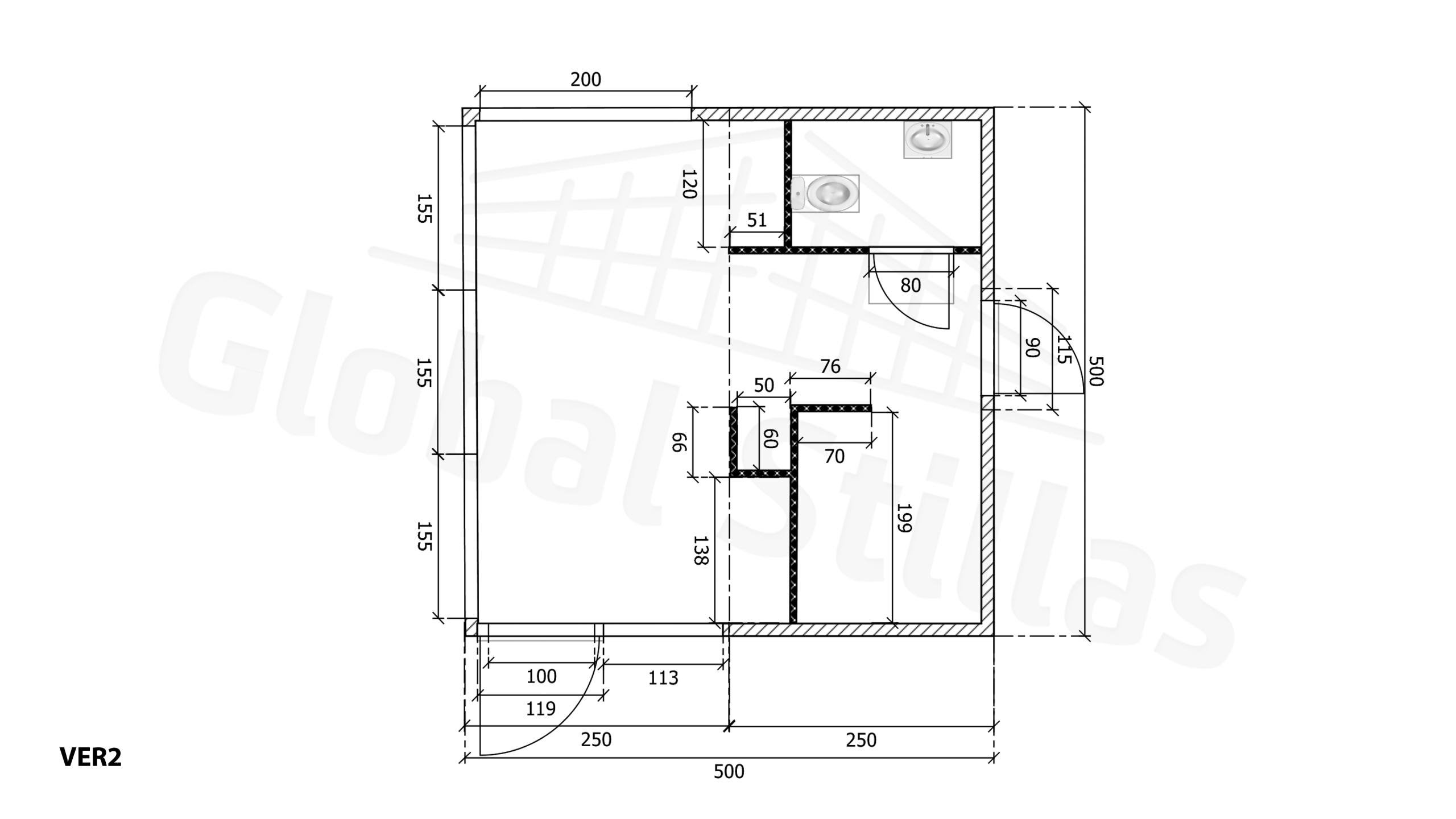
25kvm
DIMENSJONER
5m x 5m
VINDUER
3 x vindu med aluminiumsramme 155cm x 230cm (fast)
1 x vindu med aluminiumsramme 200cm x 230cm (fast)
1 x vindu med aluminiumsramme 113cm x 230cm (fast)
DØRER
1 x glassdør 100cm med aluminiumsramme
1 x aluminiumsdør 90cm med hengslet overdel
GULV
linoleum gulvbelegg
Taklamper
Stikkontakter
Sikringsboks
Strøminntak 16A
Lysbryter
Elektrisk installasjon

Toalett
Minikjøkken/kjøkkenløsning
Dusj
Klimaanlegg
Skillevegg
Rullegardin
Fasadepersienne
Glassvegg
Elektrisk varmeovn
Strøminntak 32A
Dør med kodelås

  • container
  • container
  • container
  • container
  • container
  • container
  • container
  • container
  • container
  • container
  • container

EKSEMPLER PÅ PLANLØSNINGER

  • container
  • container
  • container
  • container

Kontakt oss














    Tillegsutstyr:

    Velg tillegsutstyr:

    Melding:

    Alternativer:

    Legg ved fil med info om ditt prosjekt (Max 4MB - jpg,jpeg,png,pdf)